Майже 2 гектари землі на Київській віддадуть в оренду на 49 років
Ділянка знаходиться навпроти заїзду до Сервісного центру МВС

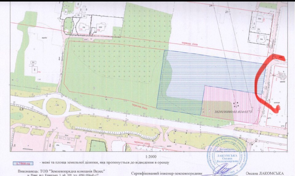
Майже 2 гектари землі на Київській виставлять на земельні торги з продажу права оренди. Тут планують звести будівлі для автотранспорту та дорожнього господарства.
Йдеться про ділянку площею у 17,5 тисяч квадратних метрів, яка розташована навпроти повороту до Сервісного центру МВС.

Право оренди хочуть продати на 49 років.
На сьогодні нормативна оцінка землі становить близько 6,5 мільйонів гривень, а стартовий розмір річної оренди близько 324 тисячі гривень.
Проте під час торгів розмір оренди зміниться ще й з врахуванням індексації. Втім, згоду на продаж права оренди спочатку мають дати депутати міської ради.


Радіо Трек: НОВИНИ